• About
  • Sales
  • Rentals
  • Offices
  • Retail Space
  • Team
  • Services
  • Resources
  • Contact
  • Property Management
Login | Register
  • 846 President Street, 2
  • 4 Rooms
  • 2 Beds
  • 1 Baths
  • $ 1,595,000
846 President Street 2 Park Slope Brooklyn NY 11215
846 President Street 2 Park Slope Brooklyn NY 11215
846 President Street 2 Park Slope Brooklyn NY 11215
846 President Street 2 Park Slope Brooklyn NY 11215
846 President Street 2 Park Slope Brooklyn NY 11215
846 President Street 2 Park Slope Brooklyn NY 11215
846 President Street 2 Park Slope Brooklyn NY 11215
846 President Street 2 Park Slope Brooklyn NY 11215
846 President Street 2 Park Slope Brooklyn NY 11215
846 President Street 2 Park Slope Brooklyn NY 11215
846 President Street 2 Park Slope Brooklyn NY 11215
846 President Street 2 Park Slope Brooklyn NY 11215
View All Photos
View Floor Plan
Schedule a Viewing

846 President Street, 2

Park Slope   |   7th Avenue & 8th Avenue
Listing ID: 2170709

  • $ 1,595,000
  • 2 Bedrooms
  • 1 Bathrooms
  • Approx. SF
  • 80%Financing Allowed

  • Details
  • Co-opOwnership
  • $ Common Charges
  • $ Real Estate Taxes
  • ActiveStatus

846 President Street 2 Park Slope Brooklyn NY 11215
  • Description
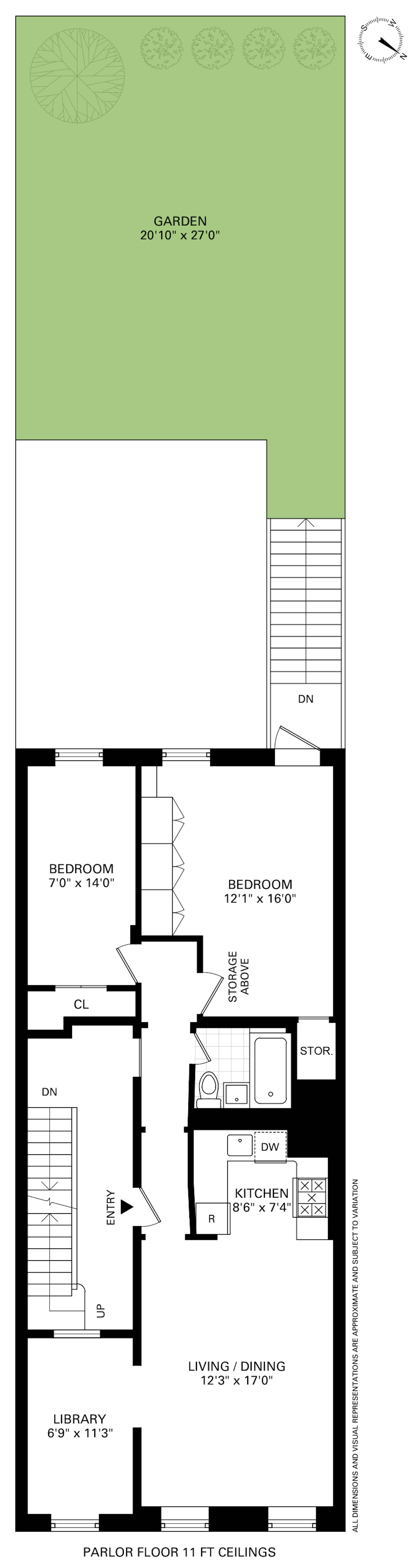
  • Welcome to 846 President Street, #2-a charming parlor floor 2-bedroom, 1-bathroom coop with a home office--also suitable as a den or possible 3rd bedroom--and your own private 500-square-foot southern-exposure garden. Nestled in the heart of Park Slope, on a beautiful Landmark Brownstone block, this home is convenient to transportation, schools and all that Park Slope has to offer.

    This renovated pre-war gem offers an inviting blend of classic character, including 11' ceilings, and modern convenience. Featuring original restored woodwork, elegant moldings and classic parquet floors along with a beautifully updated kitchen with high-end appliances, a modern bathroom and custom built-ins for storage in the primary bedroom and shelving in the home office. The large double-pane, insulated windows allow for an abundance of natural light and retain their original built-in shutters.

    846 President St. is graced with an open, spacious layout with four well-appointed rooms. In addition, you can enjoy your own park-like oasis with the private, south-facing landscaped garden that is included with this unit and accessed off the primary bedroom. Basement storage is included, the building has low common charges, allows pets, in-unit washer/dryer and AC split units.

    Centrally located in Park Slope neighborhood, you'll find an array of parks, including Prospect Park just one block away. and, it is a short distance to the cultural vibrancy that has made Park Slope famous-a variety of dining options, coffee shops, boutiques. And excellent local attractions, making 846 a truly inspiring place to call home. Close to a half-dozen subway lines, and an easy Manhattan commute.

    Offering both modern convenience and old-world charm, in a great location, this coop is an exceptional choice for those seeking a special place to
    call home.

    Please don't hesitate to contact us today to schedule a showing and experience this delightful home for yourself!

    Welcome to 846 President Street, #2-a charming parlor floor 2-bedroom, 1-bathroom coop with a home office--also suitable as a den or possible 3rd bedroom--and your own private 500-square-foot southern-exposure garden. Nestled in the heart of Park Slope, on a beautiful Landmark Brownstone block, this home is convenient to transportation, schools and all that Park Slope has to offer.

    This renovated pre-war gem offers an inviting blend of classic character, including 11' ceilings, and modern convenience. Featuring original restored woodwork, elegant moldings and classic parquet floors along with a beautifully updated kitchen with high-end appliances, a modern bathroom and custom built-ins for storage in the primary bedroom and shelving in the home office. The large double-pane, insulated windows allow for an abundance of natural light and retain their original built-in shutters.

    846 President St. is graced with an open, spacious layout with four well-appointed rooms. In addition, you can enjoy your own park-like oasis with the private, south-facing landscaped garden that is included with this unit and accessed off the primary bedroom. Basement storage is included, the building has low common charges, allows pets, in-unit washer/dryer and AC split units.

    Centrally located in Park Slope neighborhood, you'll find an array of parks, including Prospect Park just one block away. and, it is a short distance to the cultural vibrancy that has made Park Slope famous-a variety of dining options, coffee shops, boutiques. And excellent local attractions, making 846 a truly inspiring place to call home. Close to a half-dozen subway lines, and an easy Manhattan commute.

    Offering both modern convenience and old-world charm, in a great location, this coop is an exceptional choice for those seeking a special place to
    call home.

    Please don't hesitate to contact us today to schedule a showing and experience this delightful home for yourself!

    Listing Courtesy of Brown Harris Stevens Residential Sales LLC
  • Contact
  • William Abramson

    License Licensed As: William D. Abramson

    Director of Brokerage, Licensed Associate Real Estate Broker

    W: 646-637-9062
    M: 917-295-7891
    • Email Me
    • Download Contact

  • View more details +

  • Features
    • A/C

  • Close details -
  • Contact
  • William Abramson

    License Licensed As: William D. Abramson

    Director of Brokerage, Licensed Associate Real Estate Broker

    W: 646-637-9062
    M: 917-295-7891
    • Email Me
    • Download Contact

  • Mortgage Calculator
  • $
    %
    $
    %

    Loan Amount


This information is not verified for authenticity or accuracy and is not guaranteed and may not reflect all real estate activity in the market. ©2026 REBNY Listing Service, Inc. All rights reserved. Additional building data provided by On-Line Residential [OLR].
All information furnished regarding property for sale, rental or financing is from sources deemed reliable, but no warranty or representation is made as to the accuracy thereof and same is submitted subject to errors, omissions, change of price, rental or other conditions, prior sale, lease or financing or withdrawal without notice. All dimensions are approximate. For exact dimensions, you must hire your own architect or engineer.